U Košljunu na otoku Pagu izveli smo moderan kamin po mjeri u novom objektu smještenom u mirnom dijelu naselja, blizu mora, s privatnim dvorištem i bazenom. Kuća je projektirana kao luksuzni holiday objekt, a naš zadatak bio je integrirati kamin koji vizualno i tehnički funkcionira u suvremenoj arhitekturi.


Odabrano je ložište Austroflamm 65×57, poznato po visokoj učinkovitosti, čistom sagorijevanju i izrazito stabilnom prikazu vatre. Konstrukciju kamina izveli smo korištenjem Another Way termobetona te Skamol izolacijskih ploča, uz preciznu razradu konvekcijskih zona.
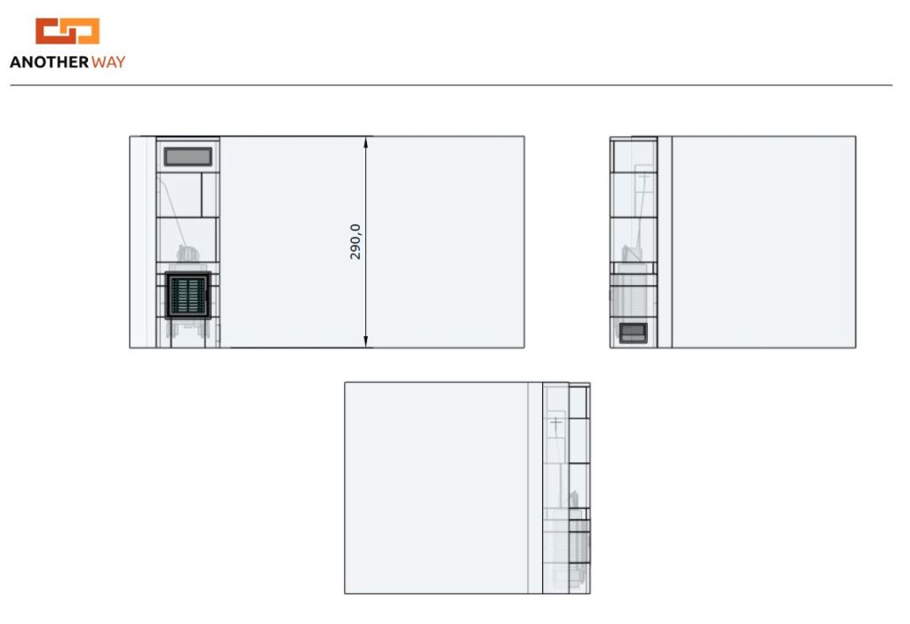
1. Priprema i pozicioniranje ložišta

Na temelju nacrta u mjerilu izrađen je točan raspored: visina kamina 290 cm, širina 87 cm. Gabariti su usklađeni s dimnjakom i budućim elementima interijera (police, konvekcijske rozete, servisni otvor).
Ložište Austroflamm 65×57 postavljeno je na armirani podložni termobeton i nivelirano laserskom kontrolom.
2. Izrada osnovne nosive konstrukcije

Konstrukcija je izvedena od Anothe Way termobetonskih blokova i ploča, dimenzioniranih za visoke temperature. U ovoj fazi vidljive su:
- čvrsta baza ložišta
- bočne nosive stijenke
- izlaz dimne cijevi i komora za konvekciju
- ojačanja na kritičnim točkama
3. Ugradnja izolacije – Skamol

Drugi sloj čini Skamol visoko-temperaturna izolacija, precizno krojena oko ložišta i dimnih kanala. Time se:
- zadržava toplina u jezgri
- sprječava pregrijavanje obloge
- poboljšava efikasnost sagorijevanja
- omogućuje dugotrajan rad bez deformacija
4. Formiranje konvekcijskih kanala

Gornja i donja crna rozetna mjesta definirana su nacrtom:
- gornja rozeta – konvekcija + pristup dimnjaku (crno mat)
- donja rozeta – povratni ulaz hladnog zraka (crno mat)
Cjelokupan sustav radi na prirodnom strujanju zraka (bez ventilatora), što je pouzdano, tiho i energetski optimalno.
5. Prva probna vatra

Ložište Austroflamm 65×57 pokazuje:
- stabilan plamen
- jasno staklo već nakon nekoliko minuta
- pravilno podizanje konvekcijskog zraka
- jednaku temperaturu na cijeloj oblozi
To je znak da su svi tehnički parametri izvedeni ispravno.

Izrada roštilja, kamina i vrtnih pečenjara – po cijeloj Hrvatskoj i otocima
Sigurnost i funkcionalnost u svakom projektu