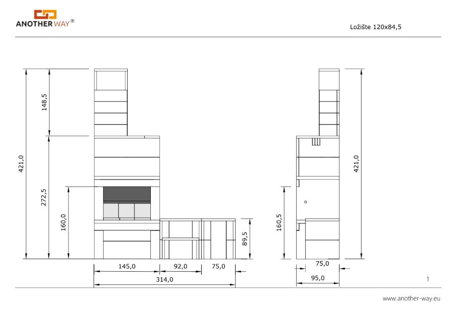
Primjer izrade vrtnog modernog roštilja sa radnom površinom – Zagreb

U Zagrebu smo izradili moderan vrtni roštilj s radnom površinom koja omogućuje jednostavniju pripremu hrane i druženje na otvorenom. Dizajn je jednostavan i funkcionalan, a korišteni materijali osiguravaju trajnost i otpornost na visoke temperature.

Korišteni materijali:
- termobeton AW (otpornost do 500 °C)
- vatrostalni beton FB06 (otpornost do 1200 °C)
- produžetak dimnjaka od termobetona uz dodatni opšav s limom i izolacijom
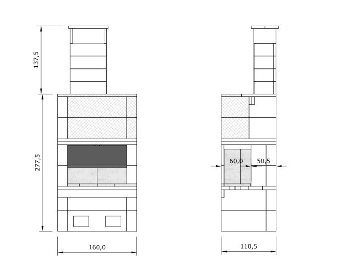
Primjer izrade otvorenog roštilja – Rijeka

Na terasi s pogledom na more u Rijeci izradili smo otvoreni roštilj s dodatnim radnim površinama i ugradbenim sudoperom. Kombinacija praktičnosti i elegantne kamene obloge čini ovaj roštilj idealnim za obiteljska i prijateljska okupljanja.



Korišteni materijali:
- termobeton AW (500 °C)
- vatrostalni beton FB06 (1200 °C)
- kamena obloga po mjeri
- produžetak dimnjaka od termobetona
Projekt Istra – kompletno rješenje u jednom objektu



U ovom projektu spojili smo više elemenata: roštilj na terasi, otvoreni roštilj u konobi i unutarnji kamin u dnevnom boravku. Na taj način vlasnici imaju cjelovito rješenje – od pripreme hrane vani do stvaranja topline i ugodne atmosfere u interijeru.
Montaža vanjskog roštilja – ISTRA

Montaža unutarnjeg kamina – ISTRA

Montaža unutarnjeg otvorenog roštilja u konobi – ISTRA

Korišteni materijali:
- termobeton AW (500 °C)
- vatrostalni beton FB06 (1200 °C)
- kamena obloga po mjeri
- spajanje u postojeće dimnjake (inox i crni toplovaljani lim)
- metalna napa debljine 3 mm po mjeri
Primjer izrade roštilja – Split – penthouse


Na luksuznoj penthouse terasi u Splitu izradili smo roštilj s bočno otvorenim ložištem. Za dodatnu sigurnost integriran je čvrsti metalni nosač, dok je dizajn prilagođen modernom ambijentu stana. Rezultat je spoj sigurnosti, estetike i funkcionalnosti.
Korišteni materijali:
- termobeton AW (500 °C)
- vatrostalni beton FB06 (1200 °C)
- metalni nosač za sigurnost bočnog ložišta


Izrada roštilja, kamina i vrtnih pečenjara – po cijeloj Hrvatskoj i otocima
Sigurnost i funkcionalnost u svakom projektu